David Morrison Associates - Architects
go to the services page Tommy Hilfiger collage
Projects Home Page
go to the design team home page
go to the contact information page
go to the links page
go to the home page
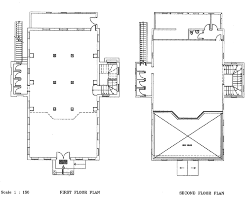
Renovation of St. Joseph School

David Morrison Associates redesigned the 120 year old wooden
school building to house Tommy Hilfiger, a top range clothing boutique.
The school was in a state of disrepair after hurricane Luis in 1995. The
charm and tradition of the original building was kept, turning it into
one of Frontstreet's most prominent traditional buildings.
St. Joseph School, Pre Luis Interrior, During Renovation
St. Joseph School
before Luis
The interior
during renovation
Floor Plans
Tommy Hilfiger, Front Tommy Hilfiger, Front Detail
The entrance after
total renovation.
View across
Frontstreet
Detail of the
entrance
 Featured Projects
Commercial    Ecclesiastical     Educational    Residential     Resort
 
 Isle De Sol     Seafood Galley      Tommy Hilfiger    
© 2003-2004 David Morrison Associates