Red Pond/
Guana Bay
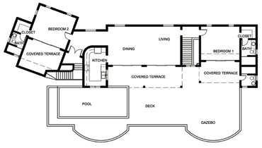
Mills Residence in Red Pond
Vincens Villa in Red Pond
Featured Projects
Commercial
Educational
Ecclesiastical
Residential
Resort
Lowlands/TerresBasses
Pelican Key
Red Pond/Guana Bay
Tamarind Hill
© 2003-2006 David Morrison Associates